Описание
Характеристики
Отзывы
Оплата
Доставка
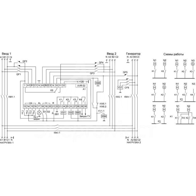
Устройство управления резервным питанием серии AVR.
Монтаж на DIN-рейку.
Предназначено для построения блоков АВР с двумя или тремя вводами питания (генераторной установкой), с секционными выключателями, с одной или двумя нагрузками.
Принцип работы.
Устройство управления AVR-02 контролирует напряжение на основном вводе трехфазной сети переменного тока. Если напряжение в пределах нормы, нагрузка подключается к вводу с помощью внешнего силового аппарата (контактора, автоматического выключателя с моторным приводом и т.п.), которым управляет исполнительное реле AVR-02. При аварии основного ввода нагрузка переключается на резервный. При восстановлении питания на основном вводе нагрузка переключается на него. Изделие имеет
входы контроля положения и входы контроля - аварийных контактов силового аппарата. По ним определяется его состояние, не допускается “встречное” включение вводов и подключение исправного ввода на аварийную линию питания нагрузки. Допустимые пределы напряжения и временные параметры переключения устанавливаются с лицевой панели AVR-02. Питание осуществляется от контролируемых вводов.
Особенности:
для работы в составе блоков: АВР 2.0; АВР 2.1; АВР 2.2; АВР 3.0; АВР 3.1;
контроль наличия фаз;
контроль минимального и максимального напряжения в фазах;
контроль чередования, слипания фаз;
контроль асимметрии фаз;
управление контакторами и моторными приводами;
контроль состояния контакторов (моторных приводов);
контроль срабатывания выключателей по сверхтоку;
формирование напряжения оперативного питания;
формирование сигнала запуска генератора;
формирование сигнала “Авария”;
ограничение доступа к настройкам вводом PIN-кода;
пуско-наладочный режим;
возможность работы от внешнего источника питания;
сохранение работоспособности в диапазоне напряжений от 24 до 450В;
использования в однофазных цепях.
Характеристики
Количество нормально замкнутых (НЗ) контактов
1
Количество нормально разомкнутых (НО) контактов
4
Кол-во в упаковке
1 штук
Габариты
0.098 × 0.024 × 0.02 м
Единица измерения
шт.
Бренд
Евроавтоматика F&F
Вес
0.0858 кг
Ширина
105 мм
Высота
90 мм
Глубина
65 мм
Номинальное напряжение питания цепи управления us перемен. тока АС при 50 Гц с
24 В
Номинальное напряжение питания цепи управления us перемен. тока АС при 50 Гц по
450 В
Количество размыкающих контактов
1
Количество замыкающих контактов
4
Возможен контроль 3-фазного понижения напряжения
Да
Род тока контролируемого напряжения
Переменный ток (AC)
Отзывов ещё нет — ваш может стать первым.
Все отзывы 0
На этой странице отзывов нет
Вы сможете выбрать способ оплаты, оформляя заказ в корзине:
- Наличными при получении товара в пункте самовывоза*
- Безналичная оплата по счёту, который мы предоставим Вам после оформления заказа
Привезём Ваш товар в любую точку Крыма или отправим транспортной компанией.
Выбор пункта выдачи доступен при оформлении заказа на сайте.
После оформления заказа мы свяжемся с Вами для уточнения стоимости и сроков доставки.
Также Вы можете получить товар в нашем пункте самовывоза по адресу:
Крым, г. Симферополь, ул. Мамеди Эмир-Усеина, 14, офис 107
(пн-пт, 09:00-17:00)
Выбор пункта выдачи доступен при оформлении заказа на сайте.
После оформления заказа мы свяжемся с Вами для уточнения стоимости и сроков доставки.
Также Вы можете получить товар в нашем пункте самовывоза по адресу:
Крым, г. Симферополь, ул. Мамеди Эмир-Усеина, 14, офис 107
(пн-пт, 09:00-17:00)
Сроки доставки в пункт самовывоза (Симферополь):
- При заказе в понедельник-вторник — выдача в четверг
- При заказе в среду-пятницу — выдача в понедельник
















64a02d41213551.17959578_60x0.png)

























